ขายด่วนที่ดินภูเก็ตติดถนนวิชิตสงครามและติดสนามกีฬาสุระกุล
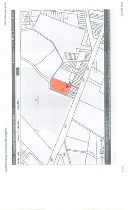
ขายที่ดินด่วน เมืองภูเก็ตติดถนนวิชิตสงครามและติดสนามกีฬาสุระกุล ห่างจากเซ็นทรัลเฟสติวัลภูเก็ตเพียง 700 เมตร เนื้อที่ 2-0-3 ไร่ ราคา 35,000,000.-บาท เจ้าของขายเอง ต้องการผู้จะซื้อจริง หรือนายหน้าท่านใดติดผู้ซื้อจริง มีค่านายหน้า 3% สนใจติดต่อ 089-2449087 วงศกร
![]() | ![]() |
| เลขบัตรประชาชน: | 3620101441XXX | IP Address: | 49.48.6.218 |
| ติดต่อ: | วงศกร | อีเมล์: | |
| โทรศัพย์: | 0892449087 | จังหวัด: | ภูเก็ต |
| คำค้น: | ขายที่ดินภูเก็ตติดถนนวิชิตสงคราม | ที่ดินติดถนนวิชิตสงคราม ภูเก็ต | ซื้อขายที่ดินบนถนนวิชิตสงครามในภูเก็ต | ขายที่ดิน ถนนวิชิตสงคราม ใกล้แมคโคร | อาคารพาณิชย์ ติดถนนวิชิตสงคราม ภูเก็ต | ซื้อขายที่ดินหน้าแมคโครภูเก็ต | ถนนในจังหวัดภูเก็ต | | ||
ลงประกาศ | เลื่อนประกาศขึ้น | ลบประกาศ | แก้ไขประกาศ
[ รับจำนอง ขายฝาก บ้าน ที่ดิน ทั่วประเทศ กู้เงินง่าย ได้เงินไว ไม่เช็คแบล็คลิส ]
ลงประกาศ | เลื่อนประกาศขึ้น | ลบประกาศ | แก้ไขประกาศ


