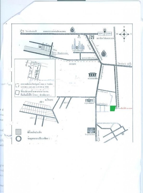
ขายที่ดิน 421 ตรว.ๆละ 5,500 ต.หนองปลิง อ.เมือง จ.นครสวรค์ ((มหาอุทกภัยปี54 น้ำไม่ท่วม!!))
ขายที่ดิน 421 ตรว.ๆละ 5,500 ต.หนองปลิง อ.เมือง จ.นครสวรค์ (มหาอุทกภัยปี54 น้ำไม่ท่วม!!))
ขายที่ดิน 421 ตรว.ๆละ 5,500 ต.หนองปลิง อ.เมือง จ.นครสวรค์ (มหาอุทกภัยปี54 น้ำไม่ท่วม!!))
อยู่หลังสโมสรรถไฟ เข้าทางซอยจันทร์สว่าง16 ทางเป็นถนนคอนกรีต
![]() |
| ติดต่อ: | มด | อีเมล์: | |
| โทรศัพย์: | 0817356294 | จังหวัด: | นครสวรรค์ |
ลงประกาศ | เลื่อนประกาศขึ้น | ลบประกาศ | แก้ไขประกาศ
[ รับจำนอง ขายฝาก บ้าน ที่ดิน ทั่วประเทศ กู้เงินง่าย ได้เงินไว ไม่เช็คแบล็คลิส ]
ลงประกาศ | เลื่อนประกาศขึ้น | ลบประกาศ | แก้ไขประกาศ

